Fassada

Jozef Ginisstraat 6a, 6b, 6c, 3060 Bertem
Dit is een woning
13u00 - 17u00
Vrij te bezoeken
Prijs op aanvraag
Opleverdatum: 31/01/2026
Omschrijving

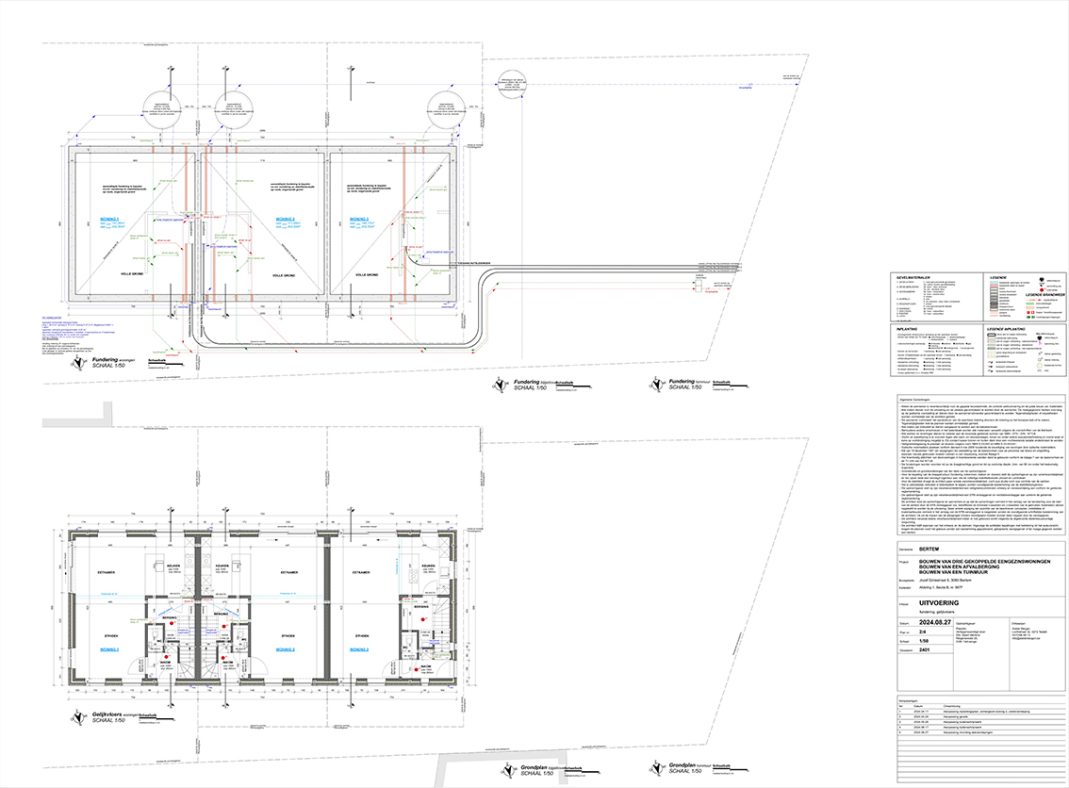
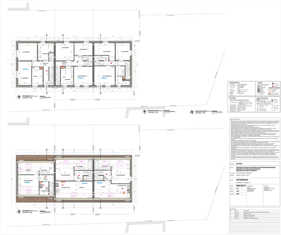
Ontdek deze absolute buitenkans van een harmonieus geheel van 3 gloednieuwe, hoogtechnologische, kwalitatief afgewerkte woningen met een bewoonbare oppervlakte van 171 m² in een mooi gedetailleerde rustieke stijl, op een uitstekend ligging (nabij school, bib, speelplein, marktplaats, met openbare parkeerplaats, openbaar vervoer, winkels, gemeentehuis, E40, UZ Gasthuisberg, Leuven centrum ed.). Deze woningen met hun authentieke, landelijke stijl blenden harmonieus met de directe omgeving.
De royale indeling met overvloed aan daglicht zorgt op het gelijkvloers voor een weldadig gevoel van ruimtelijkheid. De inkomhal met toilet geeft via een stijlvolle glazen deur toegang tot de riante leefruimte, waarbij de volledig uitgeruste keuken met eiland en afgewerkt met een keramisch werkblad waarlijk een “eye catcher” mag genoemd worden. De keuken annex eethoek geven via een infinity schuifraam toegang tot het spatieuze zonnige terras, grenzend aan een aangelegde tuinomgeving.
Elke woning beschikt over 2 badkamers en 3 toiletten.
Deze woningen behalen het allerbeste energielabel A+ (met E-peilen variërend van -7 over -8 tot -10). Elke woning is uitgerust met een lucht-water warmtepomp, 12 zonnepanelen van 450 Wp elk (5400 Wp), een volautomatisch balansventilatiesysteem D met warmterecuperatie en een regenwaterrecuperatie van 5.000 liter.
In de voortuin heeft elke woning 2 individuele parkeerplaatsen met 1 laadpaal per woning. Deze voortuin biedt ook plaats aan een gemeenschappelijke fietsenstalling en een afgeschermde afvalzone.
De verhouding klassevolle afwerking versus prijs is eerlijk gezegd uitzonderlijk. Laat u tijdens een vrijblijvend bezoek door deze “cozy gem verrassen.
Als u aan de BTW-voorwaarden voldoet, kan u aan 6 % BTW kopen. Aarzel dus niet !!

Een project van:

Een vraag? Contacteer ons!